Realizzazione dell'edificio U28, sito nel Campus Universitario Biomedico per le esigenze di ricerca ed alta formazione della Facoltà di medicina e Chirurgia.
Ubicazione: Comune di Vedano al Lambro. Anni 2007 - 2008
Committente: Università Bicocca di Milano
Professionisti: Ing. Angelo Torrisi, Ing. Carmelo Maria Grasso, Ing. Salvatore Nicotra
Consistenza: L'edificio si compone in totale di 7 elevazioni di 2 interrate e 5 fuori terra con destinazioni riportate di seguito:
Piano secondo interrato adibito a garage e locali tecnici
Piano primo interrato adibito a stabulario e locali tecnici
Piano terra adibito ad uffici ed aule per seminari
Piani primo, secondo, terzo e quarto destinati ad ospitare i laboratori di ricerca ed i relativi uffici.
La copertura è a terrazzo praticabile per manutenzione.
Sul piano architettonico l'edificio si presenta fuori terra, come un grande corpo a pianta rettangolare di dimensioni 71.50 x 22 m con orientamento Sud-Nord, al quale si innesta, all'estremità Nord un corpo minore, solo in prima elevazione, destinato ad ospitare a piano terra un auditorium.
I due piani interrati si estendono oltre sagoma, con una superficie di circa 3650 mq.
La struttura portante dell'edificio, è stata pensata per ottimizzare l'uso degli spazi in relazione alle rispettive destinazioni. Trattasi di struttura in calcestruzzo armato realizzata in opera, costituita da una dorsale di due setti centrali, ideale per ospitare i vani scala ed i cavedi tecnici.
Su questa si collegano gli impalcati ai vari piani sostenuti da telai trave pilastro che ai piani interrati sono a più ordini mentre in elevazione si riducono ad un solo ordine per parte, con pilastri di bordo a forma circolare, in quanto costituiscono anche elemento architettonico di facciata, dato che si prevede di arretrare il fronte delle chiusure esterne sui lati lunghi, lasciando gli stessi a vista.
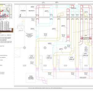
L'impiantistica è stata progettata in funzione della elevata articolazione di tipologie a livello tecnologico di eccellenza, come richiede una struttura destinata a ruolo di punta nella ricerca biomedica.
Si cita in particolare la distribuzione dei gas tecnici, ed il trattamento aria ottimizzato per i laboratori e gestito da centrale UTA installato a secondo piano interrato.
Prestazione professionale: servizi di ingegneria a supporto della progettazione definitiva eseguita all'interno dell'Ateneo.
Importo lavori: € 8.967.469,34






























